Уплотнитель кольцевых пространств Гидрокорд Стандарт

Уплотнители Гидрокорд™ УКП Стандарт

Компания Гидрокорд предлагает купить уплотнители кольцевого пространства по цене производителя. Изготовим уплотнители по размерам заказчика, возможно использование различных материалов.

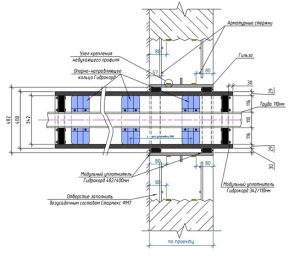
Уплотнитель кольцевых пространств Гидрокорд УКП Стандарт является оптимальным изделием, идеально герметизирующим проходки для трубопроводов различного назначения (газ, вода, сточные воды) от напорных и безнапорных грунтовых вод. Сжимающие пластины изготавливаются из нержавеющий стали.

Кольцевой уплотнитель Гидрокорд УКП может быть разъемным — сплит версия, которая применяется для уже смонтированных труб и в тех случаях, когда нет возможности смонтировать уплотнитель с торца трубы.

 

Гидрокорд™ УКП Стандарт
Гидрокорд™ УКП Стандарт

Уплотнитель кольцевого пространства для труб Гидрокорд: применение

Кольцевой уплотнитель Гидрокорд™ УКП Стандарт применяется для герметизации и гидроизоляции проходок сетей канализации, водоснабжения, теплоснабжения и др. сетей сквозь ограждающие конструкции зданий и сооружений (как правило монолитные или сборные ЖБ стены и перекрытия), а также для герметизации проходок сетей в футлярах при бестраншейной прокладке труб.

Принципом работы уплотнителя межтрубного пространства для гильзы является расширение уплотняющего элемента (резиновый сердечник], под действием сжимающего усилия прижимных стальных пластин при затяжке болтов, которые объединяют конструкцию.

Примечания

  • Пробуренное отверстие должно быть обработано эпоксидным составом;
  • Гидрокорд™ УКП не должен быть опорой для трубы;
  • Кабель должен быть оцентрован и закреплен на специальные опоры.
Высокая степень уплотнения

ВЫСОКАЯ СТЕПЕНЬ УПЛОТНЕНИЯ

Уплотнители кольцевых пространств создают высокую степень уплотнения (до 5 бар.) между трубой и отверстием, что позволяет надежно герметизировать проходки труб.

Надежность

НАДЕЖНОСТЬ

Кольцевые уплотнители изготавливаются из высококачественных материалов (такие как, нержавеющая сталь S304, ЭПДМ каучук), что обеспечивает высокую степень долговечности.

ИНСТРУМЕНТАЛЬНЫЙ КОНТРОЛЬ КАЧЕСТВА

ИНСТРУМЕНТАЛЬНЫЙ КОНТРОЛЬ КАЧЕСТВА

Кольцевые уплотнители монтируются при помощи динамоментрического ключа, что обеспечивает инструментальный контроль качества и достижение необходимого уплотнения в Нм.

ПРОСТОТА МОНТАЖА

ПРОСТОТА МОНТАЖА

Кольцевые уплотнители легко и быстро монтируются в конструкции, Сезонность не имеет значения, можно монтировать даже в мороз.

Кольцевой уплотнителя для труб Гидрокорд: преимущества

  • Подтвержденная водонепроницаемость до 5 бар.;
  • Монтаж не зависит от температуры окружающей среды;
  • Инструментальный контроль качества (Динамометрический ключ);
  • Газо-водонепроницаем;
  • Быстрый монтаж;
  • Долговечность;
  • Может быть изготовлен под заказ под любые размеры и модификации;
  • Возможна модификация для контакта с маслами и нефтепродуктами (из маслобензостойкой резины); Возможно применение в контакте с питевой водой (можификация с пищевой резиной);
  • Возможна модификация с расширенным диапазоном температуры эксплуатации (от -60°С до + 21О°С) из силиконового каучука.

Материалы

Уплотнитель кольцевых пространств Гидрокорд™ УКП может быть изготовлен из следующих материалов:

  1. ЭПДМ (Стандартно);
  2. Маслобензостойкая резина (Опционально);
  3. Пищевая резина (Опционально);
  4. Силиконовый каучук для высоких температур (Опционально).
Гидрокорд™ УКП Стандарт преимущества

Монтаж уплотнителей кольцевого пространства

  1. Очистить отверстие (гильза, пробуренное отверстие, футляр и тд.) и трубу;
  2. Проверить диаметры трубы и отверстия и сравнить с диаметрами уплотнителя;
  3. Установить Гидрокорд™ УКП на трубу (для Сплит версии – замкнуть и собрать уплотнитель на трубе);
  4. Провести уплотнитель в отверстие. Гайки стягивающий болтов должны быть направлены на монтажника. (Рекомендуется устанавливать уплотнитель таким образом, чтобы в процессе эксплуатации здания был доступ к стягивающим гайкам);
  5. Используя динамометрический ключ, произвести затяжку стягивающих болтов по схеме «Звезды» (изображение ниже). Момент затяжки должен соответствовать таблице ниже. Каждый
    болт необходимо закручивать в несколько заходов до достижения необходимого момента, требуется несколько проходов;
  6. Допускается монтировать уплотнитель на трубы, которые установлены под продольным уклоном до 30 (или до 50‰).

Максимальный момент затяжки, Нм
Диаметр болта Стандартные трубы Тонкостенные и предизолированные (гофрированные) трубы
М6 5Нм 5Нм
М8 10Нм (Для стандартных уКП и

типа 2К)

8Нм (Для стандартных уКП и

типа 2К)

20Нм (Для уКП

индивидуального исполнения)

15Нм (Для уКП

индивидуального исполнения)

М10 30Нм 22Нм
М12 36Нм 26Нм

 

 

Варианты технических решений

Уплотнения кольцевых пространств Гидрокорд™ УКП можно применять в различных случаях:

Прямоугольное отверстие в стене для одной или нескольких труб (закладная гильза): Пробуренное отверстие при помощи алмазной коронки;
Закладная асбестоцементная гильза в монолитном или сборно-монолитном ЖБ; Пространство между футляром и рабочей трубой.

По запросу в проектный отдел ООО «Гидрокорд» возможна разработка технических решений для вашего проекта. По вашим исходным данным наши специалисты разработают проект на герметизацию проходок сетей со спецификациями и подробными узлами.

 

Характеристики типов резины для уплотнителей

Характеристика Гидрокорд™ УКП из ЭПДМ резины Гидрокорд™ УКП из пищевой резины Гидрокорд™ УКП из силиконового каучука Гидрокорд™ УКП из МБС резины
УФ стойкость Хорошая Хорошая Хорошая Плохая
Твердость по Шору,А 45 ±5 55 ±5 45 ±5 50 ±5
Температура эксплуатации -30°C до +80°C -30°C до +80°C -60°C до +200°C -30°C до +80°C
Цвет Черный Черный Серый Черный

*- Любой уплотнитель можно изготовить из необходимого материала резины под заказ, по запросу.

    Онлайн-заявка